Mise en vente de terrain viabilisés à la Cadière d'Azur dans un petit lotissement au pieds du village

Vendu
Terrain - LA CADIERE D AZUR

Réf. 13 690
LA CADIERE D AZUR - 83740

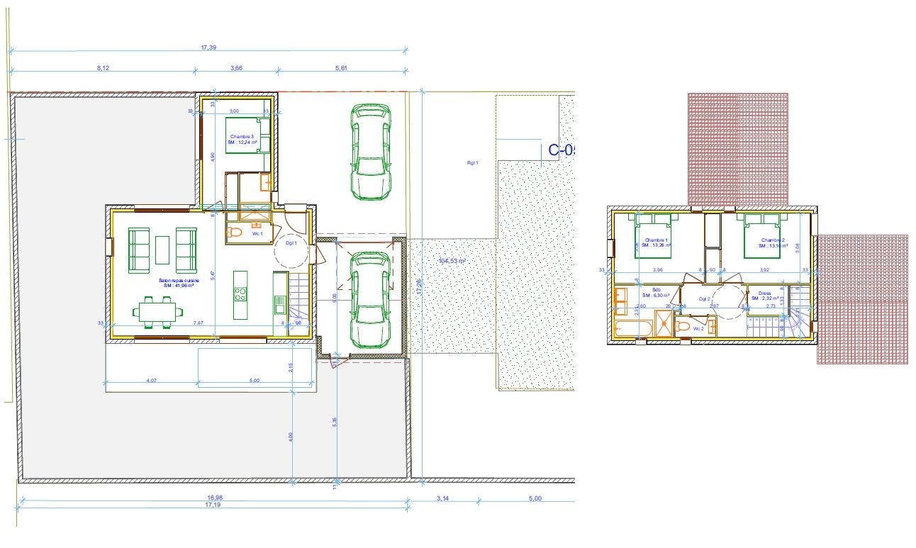
URGENT DERNIER LOT CONSTRUCTIBLE A VENDRE suite à désistement! Découvrez une opportunité rare à La Cadière d'Azur (83740) ! proposée par l'Agence immobilière Cabanis du Beausset qui est membre du réseau Orpi Situé au pied du charmant village et à proximité enviable des plages de Saint-Cyr les Lecques (à seulement 10 minutes), dans un petit lotissement d'exception propose un lot de 300 m² environ plat à bâtir, entièrement viabilisé et libre constructeur. Vous profiterez d'une tranquillité absolue, d'une excellente exposition, et d'un accès autoroutier rapide (sans nuisance sonore). Ce dernier lot (n°6) de 301 m² ou il a été déposé un permis de construire d'une villa à étage de 102 m² habitable avec garage. Villa comprenant un séjour, salon avec cuisine ouverte, une chambre de plain pied avec sa salle de bains et wc, à l'étage 2 chambres avec salle d'eau, wc et dressing. Ne manquez pas cette occasion exceptionnelle ! Regardez la vidéo de présentation pour découvrir ce lotissement. https://youtu.be/3D2Uw_O3Q4I et contactez au plus vite l'Agence Orpi Cabanis du Beausset au 0494902665

265 000 €

Les caractéristiques DEP / GES sont en cours de réalisation...

Accès voirie
Oui
Accès égouts
Oui
Accès gaz et éléctricité
Oui
Accès à l'eau
Oui
Imprimer Vidéo

Agence Le Beausset

Villa Le Marius - Bd De La Libération 83330 Le Beausset
Service Transactions
Service Locations
Service Gestion